西安蓝晓香蕉视频黄色免费在线观看展览馆展陈大纲
蓝晓香蕉视频黄色免费在线观看展览馆设计体现的是集团整体发展的全部点滴记录,是集团科研实力、产品实力的综合体现。所以设计风格重点突出现代化的展示风格,营造蓝色香蕉视频黄色免费在线观看氛围。
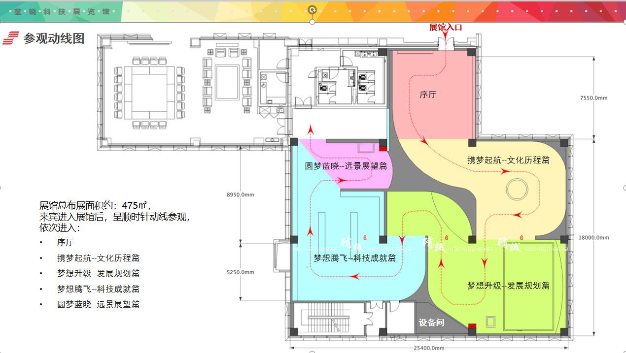
一、展览馆板块构思
以“中国梦 · 蓝晓梦”为板块划分创意,共分为5大板块:
序厅
携梦起航--文化历程篇
梦想升级--发展规划篇
梦想腾飞--香蕉视频黄色免费在线观看成就篇
圆梦蓝晓--远景展望篇
二、展览馆展陈大纲
序厅、携梦起航文化历程篇、梦想升级发展规划篇、梦想腾飞香蕉视频黄色免费在线观看成就篇和圆梦蓝晓远景展望篇。
----序厅
1. 形象墙
2. 导览图
3. 荣誉墙
4. 前言
----携梦起航文化历程篇
5. 蓝晓概况
5.1 企业简介
5.2 组织结构
5.3 公司资质
6. 发展历程
7. 香蕉视频黄色免费在线观看分子树
8. 企业文化
8.1 企业理念
8.2 党建引领
8.3 优秀员工
8.4 文化建设
8.5 社会公益
9. 亲切关怀
----梦想升级发展规划篇
10. 经纬规划(沙盘)
11. LED拼接屏专题片
12. 产业集群
13. 管理体系
14. 服务体系
15. 全球战略
16. 合作共赢
17. 人才培养
----梦想腾飞香蕉视频黄色免费在线观看成就篇
18. 蓝晓优势
18.1 研发实力
18.2 品质控制
18.3 生产控制
19. 科研创新
20. 蓝晓专利墙
21. 优质产品展陈
21.1 食品专用树脂
21.2 生物制药专用树脂
21.3 植物提取专用树脂
21.4 离子膜烧碱专用螯合树脂
21.5 废水处理专用树脂
21.6 湿法冶金专用树脂
21.7 生物分离纯化介质
21.8 连续离子交换装置
21.9 化工及水处理专用树脂
----圆梦蓝晓远景展望篇
22. 数字看成就
22.1 历年经济指标柱状图
22.2 股票实时信息窗口
23. 蓝晓展望
24. 互动留念
25. 结束语


以上内容由香蕉视频网站在线观看展览提供,陕西香蕉视频网站在线观看展览成立于2004年,专业从事展览展示设计、企业展厅设计、展览馆设计、党建馆设计、规划馆设计等各类香蕉视频免费下载APP服务。现已发展成为集创意策划、设计施工、数字多媒体于一体的文化香蕉视频黄色免费在线观看公司
DIGITAL VIDEOS
Park
INDUSTRY INFORMATION
Park
贵宾热线:400-900-8922
陕西香蕉视频网站在线观看展览装饰有限公司
西安雁塔南路金辉环球中心A座6F
TEL:400-900-8922
服务时间
早8:00-晚24:00
公司主营业务
香蕉视频网站在线观看展览成立于2004年,专业从事展馆展厅设计企业展厅设计、展览馆设计、党史馆设计、城市馆设计等各类香蕉视频免费下载APP服务。现已发展成为集创意策划、设计施工、数字多媒体于一体的文化香蕉视频黄色免费在线观看公司